Cody-Kite

Bild 1. Links: Cody frontal von hinten Bild 2. Rechts: Seitenansicht


Bild 3. Links: Linker Flügel, vom Zahn der Zeit benagt. Bild 4. Rechts: Rechter Flügel
Dies ist keine Bauanleitung, sondern mehr eine Konstruktionsbeschreibung.
Wichtig: Alle Masse, die bis jetzt unten bei den Übersichtszeichnungen angegeben sind, sind Nettomasse, die sich nach dem Zusammennähen ergeben. Auch bei den Mittel- und Seitenzellwänden, die einzeln gezeichnet sind, muss 2cm an den Verbindungskanten addiert werden. Bei den Detailzeichnungen wird dies selbstverständlich berücksichtigt . Aber eine Plausibilitätskontrolle sollte trotzdem vorsichtshalber gemacht werden, wenn dieser Drachen nachgebaut werden soll. Die folgenden Übersichts-Zeichnungen beschreiben also, wenn nicht anders angegeben, den zusammengebauten Zustand.
Übersichtszeichnungen:
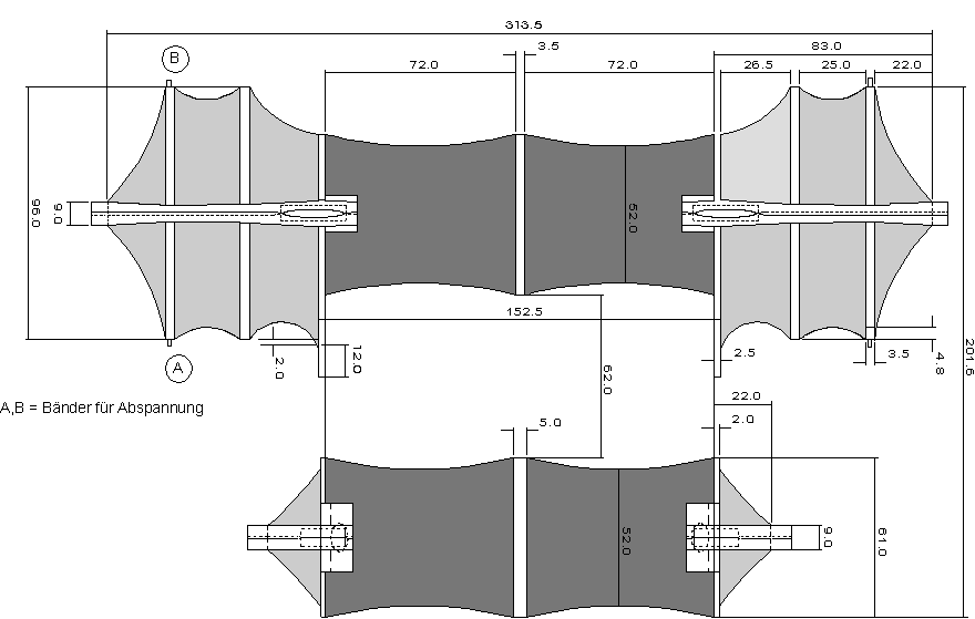
Abb.1. Obere Zellwände, von oben gesehen
Die weissen vertikalen Auslassungen in den Segeln bezeichnen die Positionen für die Stabtaschen. Die beiden jeweils in den großen Flügeln parallel liegenden paarigen Stabtaschen beinhalten breite gebogene Bambusprofile als Segellatten, um damit eine Art Tragflächenprofil zu erzeugen.
Abb.2. Die unteren Zellwände, von unten gesehen
Die mittleren Segelteile sind aus jeweils vier Einzelteilen mit Kappnähten zusammengesetzt, wohl um durch Flattern bedingtes Ausdehnen zu verhindern.

Bild 5. Unterseite Vorderflügel
Abb.3. Seitenwand
Abgebildet ist, von der Draufsicht aus gesehen, die vorde linke Seitenwand.
Die anderen Seitenwände müssen entsprechend spiegelverkehrt gedacht
werden. Die Verstärkung 7.5 x 14.0 hinter dem Durchbruch für
die Spreizen sitzt jeweils auf der Innenseite des Segels.

Abb.4. Vordere bzw. hintere Mittelzellwand
Hier sind die Bruttomasse angegeben; dieses Segel wird auf dem 0.5 cm breitem Saum an die Ober- bzw. Unterdecke der Zellen angenäht.
Abb.5. Frontansicht
Die vorderen Spreizen sind jeweils um die 260 cm lang, die hinteren
ca. 200 cm lang. Die Überalleslänge beträgt 190 cm (Längsstäbe).
Die vordere Flügelabspannung ist gestrichelt gezeichnet. Die Abspannung
geht jeweils von beiden Enden der äusseren Segellatte mit jeweils
einer Abspannschnur zum unteren Flügelende.
Die Spreizen stecken unten direkt in den durch die Kantenbänder
gebildeten Schlaufen, oben werden die Spreizen über Hanfschnüre,
die an den Kantenbandschlaufen befestigt sind, gespannt.
Die seitlichen Zellwände sind im Gegensatz zu üblichen Cody-Kites
nicht parallel.
Die halbkreisartigen Markierungen bezeichnen die Stellen, wo die Taschen
für die Längsstäbe angenäht werden. Die Taschen für
die Segellatten werden von außen auf die Flügel, die Taschen
für die Längsstäbe werden jeweils zwischen Flügeldecke
und Seitenwand angenäht. Alle Taschen sind aus 4cm breitem, sehr festem
Kantenband .
Das Segel besteht aus sehr fein gewebtem Nesseltuch, ist steif (Alter ? Imprägnierung ?). Die Kanten- und Gurtbänder sind aus festem Baumwollmaterial. Die Stäbe sind aus unterschiedlich dickem Bambusstäben, die wenigen Abspannungen und die Waage aus 2 mm Hanfschnur.
Alle Segelteile sind vor dem Zusammenbau mit Nahtband umsäumt worden. Es wird also immer Nahtband auf Nahtband und nie Segel auf Segel genäht. Das Nahtband wird immer an jeder Seite ca. 10cm länger als notwendig bemessen, um Zusatzschlaufen für das Gestänge zu erhalten.
Abb.6. Untere Flügelspitze mit Stabtasche. Die Tasche ist hier der Deutlichkeit halber im nichtangenähtem Zustand gezeigt.

Bild 6. Durchbruch mit Tasche
Einzelteile:
Vorbereitung der Flügelspitze:
Vorbereitung der Stabtasche:
Zusammennähen:
WICHTIG: Das Kantenband wird auch um die Schlaufe herumgenäht. Dazu muß das überstehende Schlaufenstück gefaltet werden (ist in der Zeichnung nicht angegegen). Dadurch wird der Druck vom Gestänge gleichmäßig auf die Segelfläche verteilt.

Abb.7. Halbe hintere Flügeldecke oben (andere Hälfte kann gespiegelt werden)
Einzelteile (nur Flügelspitze und Tasche):

Bild 7. Flügel mit Tasche

Abb.8. Halbe vordere Flügeldecke oben (andere Hälfte kann gespiegelt werden)
Einzelteile (nur Taschen):
Die Taschen für die Segellatten sind an der Spitze durch das umlaufende Kantenband geschlossen und oben auf dem Flügel aufgenäht
Zur Beachtung:
Die Nähkante für die Stabtasche verändert ihre Breite.
Von rechts: Am Durchbruch Breite = 9 cm, über der Falte 10 cm, über
der ersten Stabtasche 7 cm, über der zweiten Stabtasche 6.5 cm und
an der Schlaufe wieder 9 cm. Dadurch liegt die Spreize enger an den Segellatten
an.

Bild 8: Tasche Hauptflügel
Hier bin ich doch etwas ins Grübeln gekommen. Das Prinzip ist einfach: Alle Stäbe bestehen aus zwei Teilen, werden an den Enden ca. 5 mm tief mit einer Rundraspel bzw. -feile eingekerbt, mit Hanfschnur abgebunden und in Schlaufen eingehängt. Durch das Aneinanderveschieben der unterschiedlich langen Stäbe werden die Zellen auf Spannung gebracht. Vordere und hintere Zelle sind 62 cm von einander entfernt.

Abb.9. Längsstäbe
B: Untere Stäbe (Bambus):
Durchmesser 13 -15 mm , Hauptstab ca 177 cm lang, Nebenstab (ca. 44 - 48 cm) liegt parallel gebunden soweit verschoben in der Tasche der hinteren Zelle, daß sich eine Gesamtlänge von 190 cm ergibt.Überlappender und abgebundener Bereich ca. 17.5 cm.
A: Obere Stäbe (Bambus):
Durchmesser ca. 10 mm, also dünner wie die unteren Längsstäbe, Hauptstab ca. 137 cm, Nebenstab ca. 100 cm, überlappender und abgebundener Bereich ca. 23.5 cm bei 190 cm Gesamtlänge. Die Längsstäbe bestehen also aus einer Kombination von längerem und kürzerem Stab, wobei bei den oberen Längsstäben das längere Ende einmal vorne und auf der gegenüber liegenden Seite einmal hinten ist (Gewichtsverteilung ? Verwindungssteifheit ?).
Bezeichnend ist, daß der ganze untere Bereich des Drachens (Segel und Stäbe) sehr viel stärker ausgelegt ist als der obere Bereich.

Bild 9. Längsstabspitze

Bild 10: Segellattenbefestigung
Insgesamt werden acht Segellatten verwendet, sechs im vorderern Flügel, zwei in der Mitte des hinteren Flügels. Grundsätzlich sind alle Segellatten aus 2 cm breiten und 0.5 cm hohen Bambusstreifen geschnitten. Auf einer Seite sind alle Latten ca. 5 mm tief halbkreisförmig eingekerbt; dort wird die Spannschnur übergelegt. Die Spannschnur (Hanf 2 mm) ist mit einer dicken Nadel durch das Taschenende durchgenäht worden. Alle Taschen für die Segellatten sind auf der nach aussen, von der Drachenmitte weg, weisenden Seite geschlossen. Die Taschen selbst sind aus 4 cm breitem Baumwollband und liegen immer auf der Aussenseite der Flügel (siehe Abb.5).
Segellatten für Mittelwand vorne und hinten: 4 x 66 cm
Segellatten für Hauptflügel vorne : 4 x 98 cm
Alles was jetzt kommt, ist reine Spekulation. Die Spreizen sind nämlich
irgendwie abhanden gekommen (vielleicht schon vor fünfzig Jahren);
daher mußte ich hier etwas improvisieren. Die Länge der Spreize
war hier das einfachste: die vorderen Spreizen sind mindestens 260 cm lang,
besser noch 10 cm dazu, die hinteren ca. 200 cm lang und auch hier würde
ich noch 10 cm dazugeben. Ein Durchmesser der Bambusstäbe von 2 cm
hat zum Spannen völlig ausgereicht. Die Enden sind jeweils wie die
Längsstäbe eingekerbt und umwickelt. Die Stäbe werden unten
in die Schlaufen eingehängt und oben mittels einer Schnur gespannt.
Ob beide Spreizen in der Mitte zusammengebunden waren oder nicht, kann
ich nur vermuten.
Die äussere Segellatte des Hauptflügels (siehe Abb.1:
Positionen A und B)
ist an beiden Seiten mit der Spitze des unteren kleinen Flügels (siehe
Abb.2: Position C)
durch zwei 120 cm lange Abspannschnüre verbunden. Die Abspannung besteht
aus 2 mm starker Hanfschnur. An den Punkten A
und B sind am Flügel jeweils 6
cm lange Bänder als Schlaufen angenäht. An Punkt C
sind die Abspannschnüre mittels einer dicken Nadel durch die Stabtasche
genäht worden. Siehe hierzu auch Abb.5.
Zwischen vorderer und hinterer Zelle werden diese längst der Stäbe
gespannt. Dazu sind an den Stabtaschen jeweils 10 cm lange Bänder
teils angenäht, teils aus überstehendem Kantenband genäht
worden. Der Abstand zwischen Vorder- und Hinterzelle beträgt überall
62 cm.
Die Waagenschnur ist wiederum aus der 2 mm Allround-Hanfschnur hergestellt
worden. Die Waagenanordnung selbst ist für einen Cody ungewöhnlich;
eine Waagenschnur verbindet die beiden vorderen Endpunkte der unteren Längsstäbe
und eine weitere verbindet an den gleichen Stäben die vorderen Punkte
der hinteren Zellen miteinander. Zumindest die Waagepunkte sind die gleichen
wie bei den bekannten Cody-Konstruktionen (siehe auch Abb.2).
Beide Schnüre hat Cody dann einfach mit einer einfachen Schlaufe zusammengeknotet,
so dass alle Waagenschenkel in einem Punkt zusammenlaufen.
Die vorderen Waageschenkel sind jeweils 84 cm lang, die hintere Länge
muss zwischen 137.5 cm und 142 cm gelegen haben. So genau lässt sich
das nicht mehr feststellen; die hinteren Waageschenkel sind beide gerissen
und durch die beim Riss entstandene Dehnung leicht unterschiedlich lang.
Wie alle Cody-Konstruktionen, die sich dicht am Original halten, sind die
Waageschenkel für die Drachengrösse ungewöhnlich kurz.
Weitere Informationen über S. F. Cody und seine Drachen:
Bücher:
Magazine:
Internet:
©1997 Thomas-Michael Rudolph