Pearson-Roller
Alexander Pearson, genannt Alick, hat diesen Drachen Anfang der siebziger
Jahre als Vereinfachung des ROLOPLANS entwickelt. Dieser Drachen hat in
seiner Originalversion quadratische Abmessungen, keine Nasenkielflosse
und eine einfache Zweipunktwaage. Auch der Pearson-Roller ist in seinen
Originalabmessungen ein verhältnismässig kleiner Drachen, der
daher mit großer Präzision gebaut werden muss. Selbstverständlich
kann man ihn maßstabsgerecht vergrößern.

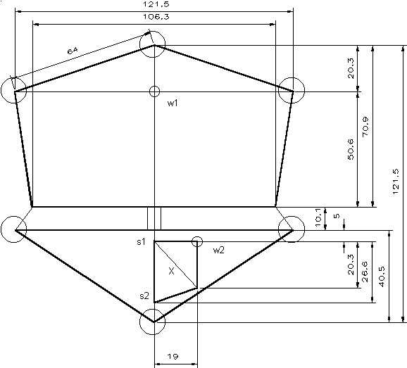
ORIGINAL-Abmessungen PEARSON ROLLER (Maße in cm)
Die Waagepunkte liegen von der Spitze aus betrachtet am oberen
Mittelverbinder und an der vorderen Kante der Kielflosse (w1,w2).
Konstruktionshinweise:
- Zwei 150-Grad Winkelverbinder (z.B. Eddy-Kreuze) für 8mm-Holzstäbe
(6mm CFK geht auch gut)
- Beide Segel und die Kielflosse (separates Teil !!) fest umsäumen
(eventuell mit eingelegter Spannschnur)
- Alle Stäbe enden in Taschen (große Kreise)
- An den Stellen, wo der Kreuzverbinder aufliegt, Bänder zum Befestigen
aufgenähen (wichtig !)
- In der Mitte unten werden beide Segel mit einem Band fest verbinden,
an den äußeren Enden mit einer verstellbaren Spannschnur
- In die Kielflosse Stab (X) eingenähen
- Zweipunktwaage insgesamt 183 cm lang
- Bei Alick Pearson war die Kielflosse frei beweglich, also nicht am
unteren Segel angenäht. Bei s1 und s2 werden Lochösen
eingeschlagen.Die Kielflosse wird dann durch Schnüre mit der Spitze
des Längsverbinders einerseits und mit dem unteren Kreuzverbinder
anderseits verbunden. Wem aber das nicht geheuer ist, kann ja die Kielflosse
in bewährter Manier am unteren Segel annähen.
Literaturhinweise:
- David Pelham: Drachen - S. 204
- Werner Backes: Drachen aus aller Welt - S. 51
- Maxwell Eden: Kiteworks - S. 210
- Ron Moulton: Das Drachenbuch - S. 167
- Patrick Mann: Roller
©1997
Thomas-Michael Rudolph